CAPANNONE DEPOSITO

Cernusco Sul Naviglio (Milano)

Rif: CAP/01
Condividi Linkedin Whatsapp Stampa
€ 395.000
Vendita
Magazzino
835 Mq
Classe energetica Non indicata
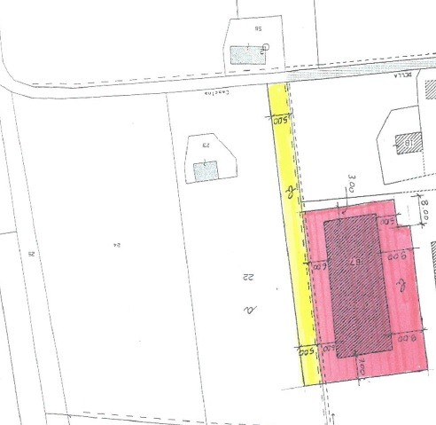
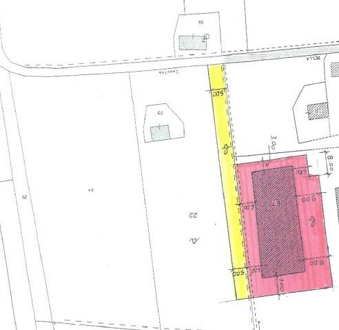
Rif. CAP/01 Cernusco sul Naviglio, esclusiva REALCASA, capannone indipendente e in ottime condizioni, composto da 2 campate H. mt. 6,00 sotto trave. Ufficio interno mq. 50 ca. oltre a spogliatoio e servizio. Cortile esclusivo cintato, mq. 1.450 ca. Capannone di mq. 600 c. a. dotato di ampio piazzale battuto per carico/scarico merci, impianto di illuminazione notturna, accesso carrale mediante cancello con comando a distanza di tipo scorrevole/autoportante, ingressi al capannone mediante n. 3 portoni e n. 1 portoncino ingresso pedonale, n. 1 servizio igienico, impianto antincendio mediante estintori. REALCASA, Agenzia autonoma e indipendente, opera nel settore dell'Intermediazione Immobiliare e Creditizia, fornendo anche servizi accessori e complementari al mondo immobiliare e non solo. Avvalendosi della collaborazione di validi professionisti, infatti, effettua Ricerca e Compravendita nei settori Residenziale, Commerciale, Industriale, Terreni, Rustici, operando nella provincia di Milano, riuscendo ad offrire vantaggiose operazioni immobiliari. Fornisce inoltre consulenza ed assistenza per Prestiti Personali, Assicurazioni, Mutui, Rinegoziazioni ecc. Per maggiori informazioni rivolgersi allo 02/92113200 oppure visitare il sito.

Dettaglio immobile

Contratto Vendita
Rif CAP/01
Prezzo € 395.000
Provincia Milano
Comune Cernusco Sul Naviglio
Indirizzo Via Resegone
Superficie 835 mq
Classe energetica Non indicata
Condizioni ottime condizioni
Ascensore no

Consistenze

Descrizione Superficie Sup. comm.
Principali
Esterno - piano terra 1.450 Mq 435 Mqc
Magazzino - piano terra 400 Mq 400 Mqc
Totale 835 Mqc

Planimetrie

Richiedi maggiori informazioni

Autorizzazione al trattamento dei dati personali+
Dichiaro di aver letto l'informativa sulla privacy ed accetto le condizioni d'utilizzo del servizio.
Riempi il campo con il codice riportato nell'immagine*
Codice Captcha
Chiamaci Contattaci